Ter. residenziale in vendita

Casarza Ligure, Via Olivella Caminata
€ 120.000
5 locali 5 locali
4000 Mq 4000 Mq
2 bagni 2 bagni

Ter. residenziale in vendita

Casarza Ligure, Via Olivella Caminata

Descrizione annuncio

Casarza Ligure – Via Olivella Caminata

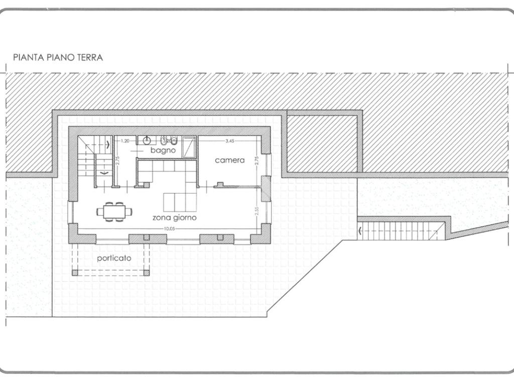
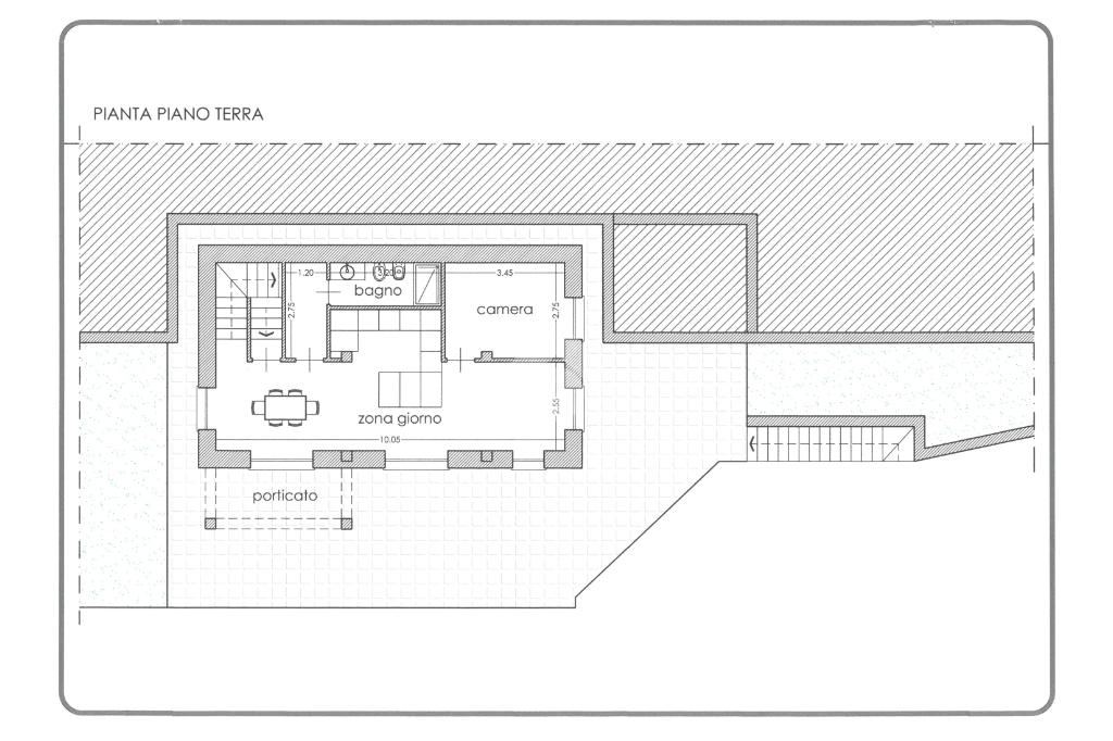
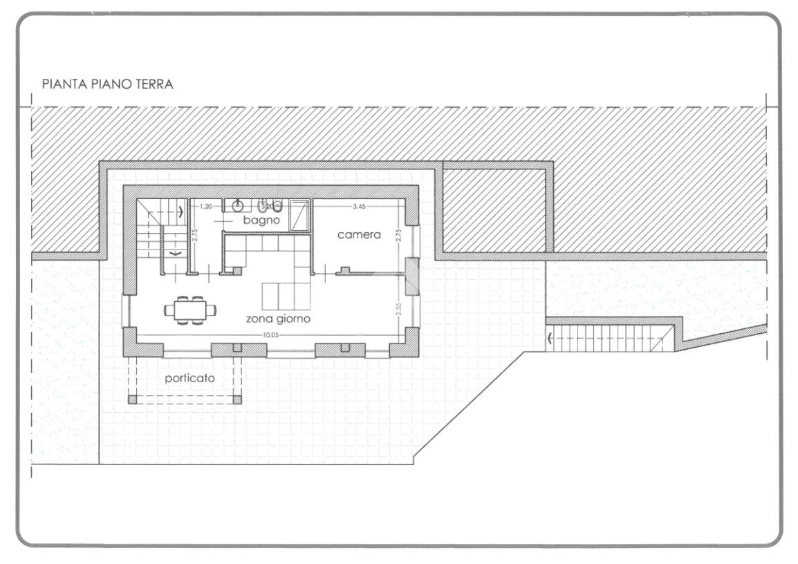
In posizione tranquilla e soleggiata, a meno di 1 km dal centro di Casarza Ligure e da tutti i principali servizi, proponiamo in vendita un terreno edificabile con studio di fattibilità già approvato per la realizzazione di una villetta indipendente di circa 95 mq abitativi.

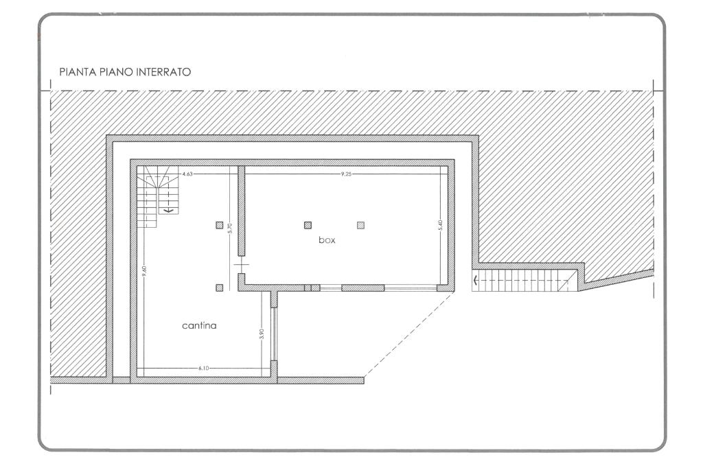
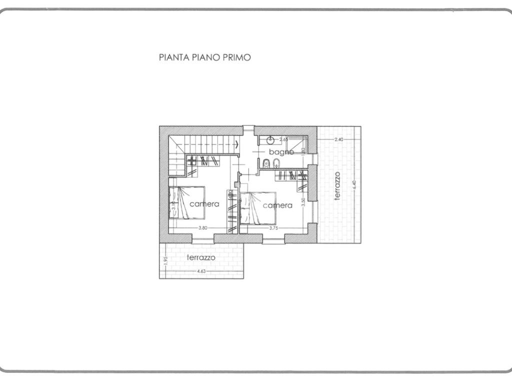
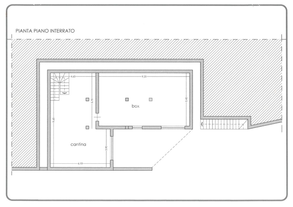
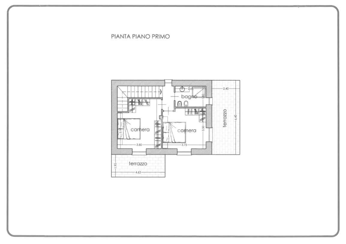
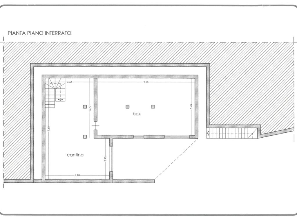
Il progetto prevede un’abitazione moderna e funzionale, sviluppata su tre livelli, composta da ampio soggiorno con angolo cottura, tre camere da letto, bagno, balcone e terrazzo panoramico con affaccio sul verde circostante. Completano la proprietà un giardino privato, ideale per vivere all’aperto in totale privacy, un box doppio di circa 50 mq e una cantina di 48 mq.

La posizione è perfetta per chi desidera vivere nella tranquillità della prima collina, senza rinunciare alla comodità dei servizi e alla vicinanza al mare di Sestri Levante, raggiungibile in pochi minuti.

Soluzione ideale per chi sogna di costruire la propria casa indipendente, immersa nella natura ma a due passi dal paese.

Mostra tutto

Nelle vicinanze

Trasporto pubblico Trasporto pubblico
stazione di Riva Trigoso
stazione di Riva Trigoso
2,5 Km
Trasporto pubblico
710 m
Ricariche auto elettriche Ricariche auto elettriche
Autofficina Malatto | EnelX
940 m
Scuole Scuole
Scuole
770 m
Scuola Elementare San Giovanni Bosco
2,9 Km
Farmacia Farmacia
Farmacia Dott. Porta
2,2 Km
Supermercati Supermercati
Doro
1,5 Km
Ekom Discount
2,6 Km
Dimeglio
2,6 Km
Negozi Negozi
Negozi
680 m
Bar Bar
Bar
670 m
Caffè La Piazzetta
670 m
Bar LA RUOTA
710 m
Bar Bocciofila Rivana
2,7 Km
Ristoranti Ristoranti
Ostaia Vegia
1,5 Km
Nino di Fera
1,5 Km
Agriturismo Casaggiori
2,2 Km
Arlecchin
2,6 Km
Il Torchio
2,6 Km
Mostra tutto

Caratteristiche

Rif.:
61134356
Piano:
1 di 3 (Piano su più livelli)
Box:
1
Balconi:
1
Terrazzi:
1
Camere da letto:
3
Mostra tutto
Prezzo Prezzo
€ 120.000
Rata mutuo Rata mutuo
€ 566 / mese
Spese annue Spese annue
€ 0
Proponi il tuo prezzoProponi il tuo prezzo

Classe Energetica

Questo immobile è esente da classe energetica
Riscaldamento:
Autonomo
Tipo impianto:
Ad aria
Tipo alimentazione:
Aria

Ti interessa visionare l'immobile?

Fissa un appuntamento  Fissa un appuntamento

Richiedi informazioni

Clicca su Leggi per aprire l'informativa
* Questi campi sono obbligatori

Calcola il tuo mutuo

Semplice e senza impegno
Anticipo

( % )
Mutuo

( % )

pochi semplici passi

inserisci i tuoi dati
Questionario completato
Grazie per aver richiesto un appuntamento senza impegno con un nostro Consulente del Credito e Assicurativo.

Hai inserito correttamente tutti i dati necessari e a breve riceverai una e-mail con un link da convalidare per inviare i tuoi dati.
Affiliato
Immobiliare Sestri Levante Srl
P.zza Italia, 2 16039 Sestri Levante (GE)
P.zza Italia, 2 16039 Sestri Levante (GE)
Zona: Sestri Levante
Mostra su mappa
Orari: dal lunedì al sabato dalle 9:00 alle 12:30 e dalle 15:00 alle 19:30. Domenica su appuntamento
Affiliato
Immobiliare Sestri Levante Srl
P.zza Italia, 2 16039 Sestri Levante (GE)

2025 Tecnocasa Franchising S.p.A. - P. IVA 08365160152 - Via Monte Bianco 60/A 20089 Rozzano (MI). Ogni agenzia ha un proprio titolare ed è autonoma. Privacy policy | Policy utilizzo | Cookie policy